Eladó Családi ház, Táborfalva

#674400244

CSAK NÁLUNK  
Eladó Családi ház

65 millió Ft

Táborfalva
Alapterület:
120 m2
Szobák száma:
2 + 3
Állapot:
Újszerű
Építési mód:
Tégla
CSOK igényelhető
Kertkapcsolatos
Kirakatba
Zöldövezeti

Kérjen személyes bemutatást!
Adja meg adatait, és hogy mikor érne rá!

Az Adatkezelési tájékoztatót elolvastam és elfogadom.

Megfelelő időpontok

Hétköznap délelőtt
Hétköznap délután
Hétköznap este
Hétvégén délelőtt
Hétvégén délután
Hétvégén este
Kérés elküldése
1 041 m2
Újszerű
Cirkó
Udvari
Délnyugat
Hátsókert
Összkomfort
D
Nem akadálymentesített
Bevezetve (230 Volt)
Van
Vezetékes gáz
Közműhálózatba bekötve

Nagyon jó állapotú, önálló családi ház

Táborfalván kínálunk eladásra egy nagyon jó állapotú, önálló családi házat.

A 120m2-es ingatlan, 1041m2-es összközműves telken helyezkedik el, csendes környéken.

A ház nagysága, és szobaszáma lehetővé teszi akár nagy család részére is a kényelmes együttélést.

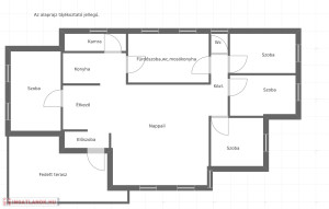
Kialakításra került az ingatlanban 4 hálószoba, amerikai konyhás nappali, kamra, előszoba, wc, fürdőszoba, közlekedő, fedett terasz.

A ház részben alápincézett, beton alapra, tégla falazattal ,cserép fedéssel, fa födémmel épült 2007-ben.

Szigetelt, a központi fűtés gáz cirkóról, és vegyes tüzelésű kazánról egyaránt üzemeltethető, de klíma, és kandalló is rendelkezésre áll.

Az összkomfortos, tehermentes ingatlan hitelezhető.

Ha Ön egy kényelmes, tágas, világos, jó állapotú otthont keres csendes környéken, akkor hívjon, megmutatom ezt a remek házat!

Kizárólag irodánk kínálatában megtalálható.

 

Bocskainé Krisztina

+36-30/221-3336

Helyiség Méret (m2)
Szoba 16
Szoba 11.5
Szoba 9.5
Szoba 9.5
Nappali 26
Előszoba 3
Konyha + étkező 17
Kamra, Éléskamra, Spájz 4
Fürdőszoba + WC 17
WC 1.5
Közlekedő 5

Bocskainé Gudmon Krisztina
 

  2025.Január hónap értékesítője

Kérdése van?
Adja meg adatait és felhívjuk!

Az Adatkezelési tájékoztatót elolvastam és elfogadom.
Üzenet küldése